Совершенствование конструкций зданий из несущих монолитных блоков
Коренные отличия объемно-блочного домостроения от крупнопанельного и других методов строительства заключаются в возможности резкого укрупнения монтажного элемента здания и обеспечения наибольшей степени его заводской готовности. Причем такой монтажный элемент представляет собой замкнутую пространственную железо- бетонную конструкцию, обладающую необходимой прочностью, жесткостью как независимо от аналогичных конструкций, так и в совместном их сочетании в зданиях и сооружениях. Все это требует иного подхода к конструированию зданий в целом и их элементов с учетом всех стадий строительного конвейера—заводского изготовления, транспортирования, монтажа, а также условий эксплуатации.
Отличительными особенностями конструкции объемного блока являются малая толщина сечений крупногабаритных его элементов (внутренних стен и потолков), а также слоистость ограждений /в зданиях, образуемая двумя гранями блоков и воздушной прослойкой между ними. При этом отношение высоты к толщине внутренних стен объемных блоков в ряде случаев составляет U/d= 250/4= = 62, в то время как наименьшая величина этого соотношения для внутренних стен крупнопанельных зданий в проектах новых серий составляет 250/12 —20.
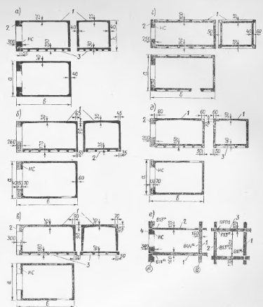
На рис. 1 представлены конструкции объемных блоков для различных технических направлений. По конструктивно-технологическому признаку их можно свести к двум типам: «колпак» с опиранием по углам и по контуру и «лежащий стакан». Конструкции типа «колпак» различаются также способом присоединения к панели перекрытия: путем стирания на нее или подвешивания ее к стенам внутри блока.
Проблема преодоления отрицательных последствий повышенной гибкости граней блоков решается по-разному. Например, в блоках типа «лежащий стакан» для внутренних несущих стен (рис.1) с наружной стороны предусмотрены контурные ребра, располагаемые пример, но через 1 м, призванные воспринимать вертикальные усилия без потери устойчивости стенами. В блоках типа «колпак» для этой же цели, а также для повышения прочности при опирании по углам, вводятся наружные вертикальные уширения пилястры или внутренние (рис. 1 а} б). При опирании по контуру (рис. 1) толщина стен блоков существенно увеличивается (с 4 до 6 см) и их гибкость уменьшается. Здесь также используется благоприятное влияние защемления несущих стен блоками смежных этажей.
Жесткость панелей пола во всех случаях обеспечивается устройством контурных и промежуточных ребер в одном или двух направлениях, а также введением напряженного армирования при рабочих пролетах более 3 м.
Жесткость потолочных граней в блоках типа «лежащий стакан» (рис. 1,г) обеспечивается наличием ребер, направленных вверх (в одной плоскости с вертикальными ребрами); B блоках типа «колпак» (рис. 1, б, е, д) потолка.
Проблема использования положительных свойств слоистой конструкции и уменьшения ее отрицательных влияний также решается по-разному.

Опыт производства блоков и строительства из них зданий свидетельствует о том, -что освоение объемно-блочного строительства позволит кардинально решить важнейшую проблему резкого повышения производительности труда и сокращения сроков возведения зданий.
Вместе с тем на пути совершенствования и дальнейшего развития конструкций объемно-блочных зданий стоят многочисленные, часто противоречивые требования экономики, производства и эксплуатации. Эти трудности, однако, необходимо преодолеть для успешного завершения эксперимента на головных заводах и ускорения разработки и строительства типовых заводов объемно-блочного домостроения.
Наиболее важным требованием конструирования блоков и зданий из них является надежность обеспечения прочностных и эксплуатационных качеств. Если в крупнопанельном здании вследствие многократной статической неопределимости системы выход из строя одного элемента приведет лишь к перераспределению усилий на другие, менее нагруженные, в объемно-блочном здании нарушение несущих функций любого блока нижнего этажа может привести к обрушению верхней части столба блоков, таким образом, к нарушению общей целостности.
Необходимые величины прочности, жесткости и устойчивости блоков достигаются правильным выбором их расчетно-конструктивной схемы, назначением соответствующих величин рабочих сечений несущих элементов (опор, углов, стен и т. п.), подбором характеристик материалов (марок прочности бетона, арматуры, раствора швов, сварных и замоноличиваемых соединений) и непременным учетом различных случайных воздействий при эксплуатации зданий.
Как показали экспериментальные исследования, при равных прочих условиях блоки с опиранием по контуру обладают значительно большей (в 1,5—2 раза) несущей способностью по сравнению с опиранием по углам. Это обстоятельство, а также большая возможность выдвижения блоков из плоскости фасада для создания пластических решений, делают (предпочтительными конструкции) опиранием по контуру. При существующей тенденции утолщения стен блоков (по условиям обеспечения звукоизоляции и технологичности) опорная зона увеличивается от углов к серединам блоков и естественно приближается к линейному описанию.
Существует еще одна возможность совершенствования конструкций—созданиетаких расчетных связей между блоками, которые могли бы вместо сочетания отдельных относительно независимых столбов блоков превратить здания в пространственную систему. Благодаря этому появится возможность выявить и использовать резервы экономии материалов, и в первую очередь стали, -в домах из несущих железобетонных объемных блоков.
Второе важнейшее требование конструирования состоит в том, что объемные блоки должны быть сконструированы и выполнены так, чтобы исключить или свести к минимуму образование в них трещин. Возникновение трещин в стенах, потолках и плитах перекрытий блоков может снизить их несущую способность, сделать затруднительной заводскую отделку, потребовать значительных дополнительных затрат на ремонт, ухудшить эксплуатационные качества объемно-блочных домов помещений. Необходимо отметить, что речь идет о допустимых нормами трещинах с раскрытием до 0,2— 0,3 мм. Значительное количество даже таких трещин приводит к отрицательным результатам. Па практике приходится встречаться с трещинами, ширина раскрытия -которых более 1 мм.
Трещин о образование в железобетонном объемном блоке обусловлено тремя группами причин: технологией изготовления (зависит от состава исходных материалов, формования, тепловой обработки, распалубки), условиями транспортирования и монтажа блоков (вследствие больших динамических нагрузок), а также конструктивными особенностями. По данным обследований, влияние каждой из указанных групп примерно одинаково.

При заводском производстве блоков трещины в них образуются главным образом из-за повышенных усадочных деформаций бетона, возникающих при нарушениях технологии. Например, повышенный расход цемента (более400кг/м3), большая пластичность бетонной смеси (при. осадке конуса более 12 см), применение слишком мелкого дробленого или нефракционированного заполнителя приводит к появлению усадочных трещин.
Трещины могут образоваться при стыковании разных бетонов (по прочности, жесткости, составу), неполном и неравномерном уплотнении бетонной смеси, сокращенных режимах термообработки блоков, неправильной распалубке вследствие неравномерного движения сердечника или переохлаждения бетона по отношению к сердечнику, вызывающему усилия растяжения.

Блоки должны быть складированы на основание с гладкой поверхностью, свободное зависание любой из опор блоков не должно превышать 10 мм, в противном случае в углах проемов появляются косые трещины.
Одной из причин образования трещин является также пробивка дополнительных отверстий в стенах, потолках и перекрытиях шлямбуром (ломом, топором). Такие отверстия можно только сверлить. Для исключения трещин при конструировании блоков необходимо придерживаться следующих правил:
назначать соответствующую толщину или сечения стен, потолков, несущих углов, перекрытий. С учетом требований звукоизоляции и технологичности наименьшую толщину сечений граней блоков следует принимать 5—6 см из тяжелого бетона и 7—8 см из легкого бетона;
не допускать резких изменений сечений несущих и ограждающих элементов в местах устройства ребер, утолщений, предусматривая плавные переходы;
избегать концентрации напряжений в углах проемов (путем их скругления), в опорных зонах (за счет их расширения), в сварных соединениях связей;
обеспечивать эффективность сетчатого армирования стен и потолков (осуществлять контроль за сварочными работами, профилированием арматуры,), препятствующего деформациям усадки бетона, учитывая вероятность проскальзывания холоднотянутой проволоки в тонкостенных конструкциях;
разработать и применять специализированные транспортные и монтажные средства и приспособления, устраняющие опасные перегрузки блоков.
Существующее в настоящее время неоправданно большое разнообразие конструктивных решений блоков приводит к необходимости унификации их конструкций и элементов (сечений, узлов и деталей).
На рис. 2 приведена модель унифицированного блока типа «колпак», объединяющая существующие сегодня конструктивные разновидности, предназначенные к выпуску разными заводами. Она -предлагается специалистам в порядке обсуждения. Разработана модель на основе совместных предложений ЦНИИЭП жилища и НИИСК. В основе ее конструкции заложены следующие принципы: 1) монолитная часть «колпака» формуется полностью из 5 граней;
2) «колпак» устанавливается на отдельно изготавливаемую плиту перекрытия;
3) наружная стена (одна или несколько) в виде однослойной или слоистой дополнительной панели навешивается на блок на посту комплектации;
4) блок в целом может опираться по-этажно по углам и линейно, в зависимости от проектного решения. При угловом опирании допускается большее раскрытие проемов, но меньшая этажность;
5) наименьшее сечение граней из тяжелого бетона составляет 6 ем;
6) предусмотрены меры против провисания и растрескивания панели потолка (ребра вверх или существенное утолщение плиты);
7) для вертикальной и горизонтальной изоляции воздушных промежутков между блоками предусмотрены пружинящие стальные диафрагмы;
8) герметизация наружных стыков между блоками, а также стыков по дверным коробкам обеспечивается с помощью специальных на тельников;
9) между блоками предусмотрена установка связей, обеспечивающих пространственную работу зданий.
В сочетании с совершенствованием технологии и оборудования, методов и материалов отделки, транспортных и монтажных средств, а также обеспечением высокого уровня организации производства и монтажа, строгим контролем ина всех переделах производственно- строительного конвейера — эти мероприятия должны обусловить высокое качестве и (Надежность конструкции объемного блока.
